Price £280,000 - Available


  • Extremely Well Presented Semi-Detached House
  • Two Double Bedrooms
  • Excellent Extension Potential (STPP)
  • Energy Efficiency Rating D59
  • Conservatory and Utility WC
  • Oil Central Heating and UPVC Double Glazing
  • Sizeable Private Garden, Parking and Garage
  • Viewing Highly Recommended!

Situated in a non-estate position within the highly desirable village of Castle Acre, Longsons are delighted to bring to the market this well presented two bedroom semi-detached house. The property has excellent scope for extending (STPP) and offers two fireplaces (currently not in use), conservatory, utility, sizeable private garden, off-road parking, garage, oil central heating and UPVC double glazing throughout.
Viewing highly recommended.

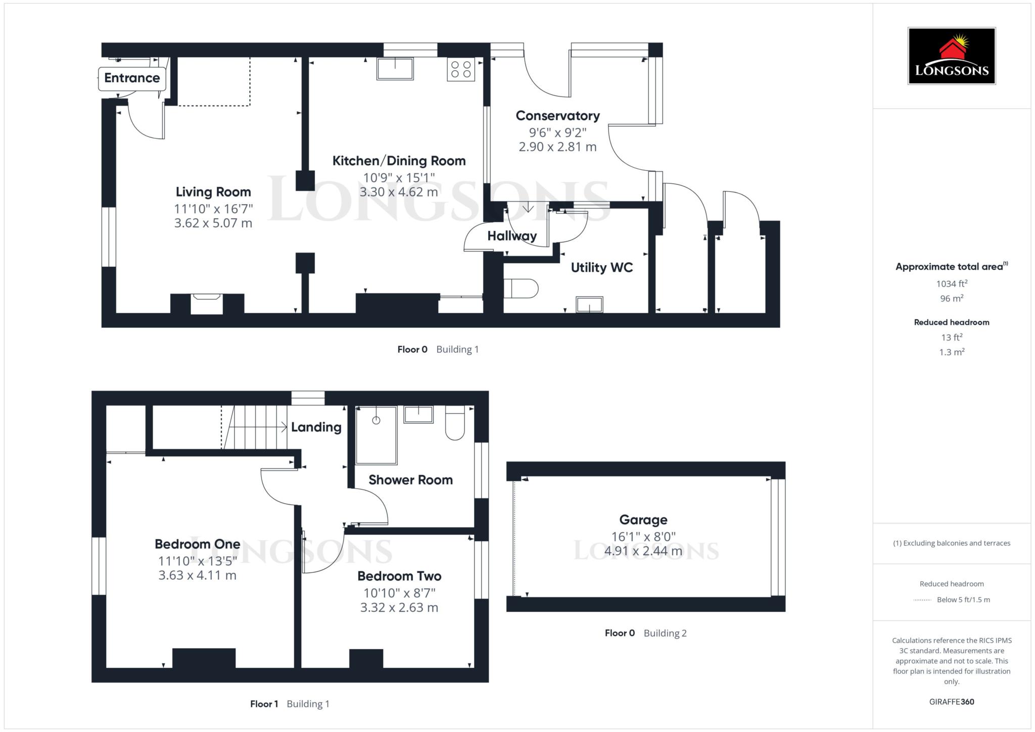
Briefly, the property offers entrance hall, living room, kitchen/dining room, inner hall, utility WC, conservatory, two bedrooms, bathroom, off-road parking, rear garden, garden shed, two external storage rooms,

CASTLE ACRE
Castle Acre is a popular village and well known for its 13th century priory and castle ruins. With a village green where you can find a tea room, fish and chip shop, bed and breakfast and a pub can be found. Other amenities include a church and a grocery shop.

The village is ideally located for walking with plenty of country walks and the River Nar flowing through nearby fields.

Castle Acre is located approximately four miles from the market town of Swaffham with a good selection of shops and restaurants. The town is well catered for with local supermarkets including a Waitrose, an excellent Saturday market, three doctors surgeries and free parking throughout the town.

Entrance Hall
UPVC entrance door to front, stairs to first floor.

Living Room - 16'7" (5.05m) x 11'10" (3.61m)
Feature fireplace with live flame effect electric fire, UPVC double glazed window to front, two radiators.

Kitchen/Dining Room - 15'1" (4.6m) x 10'9" (3.28m)
Range of fitted kitchen units to walls and floor, oak effect worksurface over with tiled splashbacks, stainless steel one and a half bowl sink unit with mixer tap and drainer, integrated electric oven with electric hob and extractor hood over, space for tall fridge/freezer, feature fireplace (currently not in use), UPVC double glazed window to rear and side, two radiators.

Inner Hall
UPVC double glazed door leading to conservator, radiator.

Utility WC
Work surface with space and plumbing for washing machine under and tumble dryer over, tiled splashback, hand wash basin, WC, obscure glass UPVC double glazed window to side, radiator.

Conservatory - 9'6" (2.9m) x 9'2" (2.79m)
Brick and wooden conservatory with polycarbonate roof, radiator providing all year round usage, electric and lights, doors leading to rear and side garden.

Stairs and Landing
UPVC double glazed window to side, loft access, radiator.

Bedroom One - 13'5" (4.09m) x 11'10" (3.61m)
Built-in wardrobe, UPVC double glazed window to front, radiator.

Bedroom Two - 10'10" (3.3m) x 8'7" (2.62m)
UPVC double glazed window to rear, radiator.

Bathroom
Corner bath with hot and cold taps, shower cubicle, tiled splashbacks, hand wash basin, WC, obscure glass double glazed window to rear, extractor fan, radiator.

Outside Front
Large driveway laid to shingle leading to wooden garage, hedge to perimeter, trees and shrubs to borders, gated access to rear garden.

Garage/Storage - 16'1" (4.9m) x 8'0" (2.44m)
With double wooden doors to front.

Rear Garden
Area laid to decking and shingle, two storage rooms, paved path leading through area laid to lawn, hedge and wooden fence to perimeter, wooden garden shed, trees and plants to beds and borders, gated access to front.

Agent`s Note
EPC rating D59 (Full copy available on request)
Council tax band A (Own enquiries should be made via Breckland District Council)




Council Tax
Kings Lynn & West Norfolk, Band A

Notice
Please note we have not tested any apparatus, fixtures, fittings, or services. Interested parties must undertake their own investigation into the working order of these items. All measurements are approximate and photographs provided for guidance only.

Floor Plan
EER Chart

The Energy-Efficiency Rating is a measure of a home's overall efficiency. The higher the rating, the more energy-efficient the home is, and the lower the fuel bills are likely to be.

Utility Supply Type
Electric Mains Supply
Gas None
Water Mains Supply
Sewerage Mains Supply
Broadband None
Telephone None

Other Items Description
Heating Oil Central Heating
Garden/Outside Space Yes
Parking Yes
Garage Yes

Broadband Coverage Highest Available Download Speed Highest Available Upload Speed
Standard 19 Mbps 1 Mbps
Superfast 80 Mbps 20 Mbps
Ultrafast Not Available Not Available

Mobile Coverage Indoor Voice Indoor Data Outdoor Voice Outdoor Data
EE Enhanced Enhanced Enhanced Enhanced
Three Likely Likely Enhanced Enhanced
O2 Enhanced Likely Enhanced Enhanced
Vodafone Likely Likely Enhanced Enhanced

Broadband and Mobile coverage information supplied by Ofcom.


marker icon